Galpão para Aluguel com 4 banheiros, 375 m²
Jardim Bertanha, Sorocaba - SP
Informações
- Perfil: Usado
Medidas
- Área Construída: 350 m²
- Terreno Área Total: 375 m²
Descrição
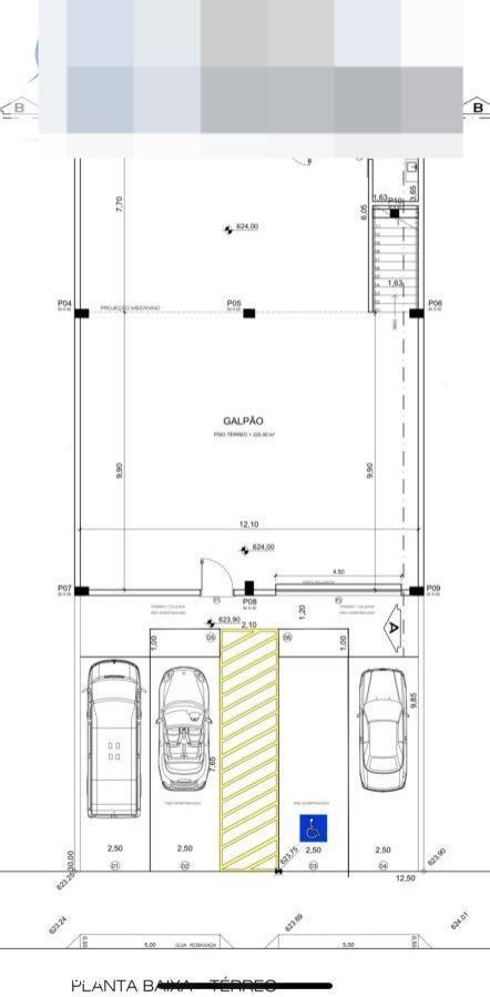
Excelente galpão em frente ao CAGESP - Sorocaba, com terreno de 375m² e construção de 350m², possui
Mezanino;
04 banheiros;
Copa;
Quintal;
6 vagas na frente;
Imóvel em obra - término previsto para novembro/2022
Conta nas suas proximidades com colégios, supermercados, clinica, pizzarias, restaurantes, farmácia, hotel, faculdade, igreja, Hospital Unimed, comércios entre outros.
Fácil acesso à Rodovia Raposo Tavares.
Características
- Cozinha




